FERNBANK
Whole house renovation – Insch
This whole house renovation of a traditional granite house was completed in 2021.
The existing compartmented layout and incongruous rear extension that lacked connectivity with the existing house and garden, required a re-design within the existing footprint.
Demolition of internal partitions, re-cladding the rear extension and installing a new decking structure with integrated planters stepping down into the mature garden allowed the family to experience the ‘inside-outside’ living that they desired. (click on images to view)
LOCHEND OF BARRA (Casa Barra)
New Build Home near Oldmeldrum
This home, completed in 2019, is a new farmhouse located in the heart of Aberdeenshire.
Positioned to maximise solar gain and to command western views over the nearby Bennachie hills, the home was designed with a ‘fabric first approach’ which is part of the ethos at Azuora.
The fabric first approach is a building design and renovation strategy that focuses on improving a building’s energy efficiency by optimizing its envelope. This approach prioritizes heat conservation over heat generation.
The 5 bedroom home maximises the 250m2 floor area integrating open-plan living, farm office, gym and 1st floor snug opening onto a covered balcony with Western views over the rural landscape.
The home was featured on BBC Scotland’s ‘Home of the Year’ in 2024. (click on images to view)
Click here – www.bbc.co.uk programmes
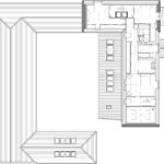
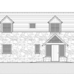
WILLOWBROOK
New Build Home near Insch
This new house completed in 2020 is situated 2 miles out of Insch where the surrounding local area is rich in agricultural farmland with many vernacular farm houses and agricultural out-buildings.
The proposed dwelling and garage are designed with these vernacular forms, scale and materials in mind, sited to sit well within their context and complete the existing rhythm and pattern within the cohesive group.
The ‘T’ shaped plan allows for all accommodation to be provided within an appropriate scale and for the main open plan leg to take full advantage of solar gain and cross ventilation for a comfortable living environment. High levels of insulation, bio-mass central heating and PV panels give this house a small carbon footprint which is extremely important in the current environmental climate.
Externally the dwelling and garage are proposed to be finished in a mix of smooth render, natural timber vertical cladding and natural stone, sympathetic to the surrounding existing architecture. (click on images to view)
EXTENSIONS
Rear Kitchen-Family Room extension in Insch
A rear single storey extension comprising kitchen, family and breakfast area allowed more open plan living to the Client’s modern home, along with alterations to the existing house adding play room and formal dining, all within easy reach and sight of each other. New larger utility, WC and lobby, essential for family day to day life are accessed by the side of the house under a new covered entrance.
The extension will be clad in horizontal larch with a secret fix system, complemented by an aluminium standing seam roof with rooflights to flood the interior with daylight. Bi-fold doors and large openings allow access and views out to the garden. (click on images to view)
FEASIBILITY STUDY
Steading Conversion Inverurie
This feasibility study investigated the re-use of part of a redundant vernacular farm steading to convert into a 5 bedroom family home. An extension to the main open-plan living area allowed further communal spaces and utilities, clad in materials sympathetic to the agricultural aesthetic, whilst being a clearly new addition to the existing building. Window seats utilise the thick stone walls creating cosy viewpoints across the landscape.
The creative re-use of existing buildings is very important to Azuora Architects.
(click on images to view)
LITTLE EDNIE
Oak Frame extension and alterations near St. Fergus
This rural family home consisted of a small storey and a half traditional granite cottage with an existing connecting rear extension.
The existing bedroom within the cottage attic space had very limited headroom and floorspace, so we raised the roof by 1.5M to give a much more usable master bedroom and dressing area whilst being able to address the damp issues on the ground floor by adding damp proofing and insulation.
A new oak framed family and dining area was added to the front elevation in a complimenting vernacular style with timber cladding to match the existing rear leg of the house.
Azuora Architects worked closely with the oak frame specialist who worked seamlessly alongside the main contractor on site.
(click on images to view)


























































